0724-2377111
本地家装消费服务平台
首页 设计与报价 找我家 装修图库 看样板房 小编探家 我要装修 装修日记 业主论坛
荆门本地装修案例库
荆门社区网(太平洋百货16楼)
服务承诺: 为装修网友提供相关服务
查看公司详情 >
首页 装修案例 设计团队 公司简介 论坛专版
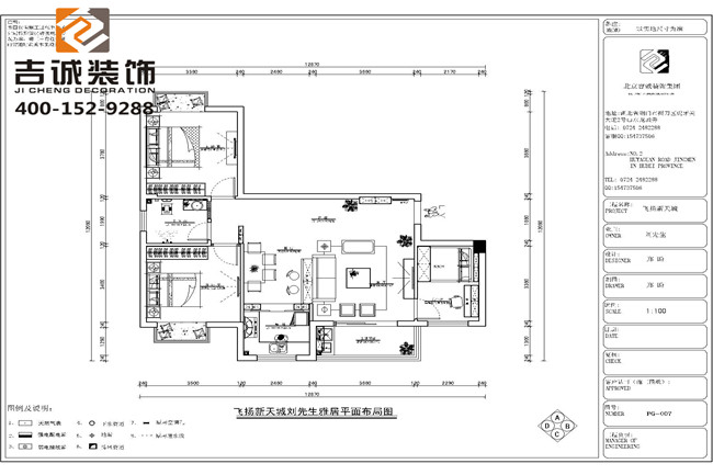
飞扬新天城107㎡三室两厅现代风格
0元抢4套设计方案与报价
我已阅读并同意荆门装修网的 用户协议
目前已为2535位业主免费成功获取报价我们提供的该项服务为免费服务不收费用
其他案例
更多 >